Hale de inchiriat in Liftcon Buftea
Inchiriere
Hale de inchiriat in nord-vestul Bucurestiului, zona Chitila-Buftea
Hale de inchiriat in incinta parcului logistic Liftcon Buftea. Proprietatea este amplasata in partea de nord-vest a Bucurestiului, zona Chitila-Buftea, pe drumul national DN7.
Parcul logistic este amplasat intr-o zona mixta ce permite accesul direct din soseaua de centura a orasului si din viitoare Autostrada de Centura, aflata la 5 km distanta. Parcul industrial se afla la 7 km distanta fata de drumul national DN1A, la 12 km de drumul national DN1 si are acces la 2 autostrazi, respectiv autostrada A1 la 12,5 km distanta si autostrada A3 la 20,5 km.
Transportul public include statii de autobuz, amplasate la 20 m distanta fata de proprietate, ce fac legaura directa cu terminalul intermodal Straulesti, si gara Sabareni.
Liftcon Buftea este un proiect modern de hale industriale ce poate acomoda atat spatii de depozitare, cat si spatii de productie. Cladirile sunt realizare din panouri tip sandwich cu o grozime de 80 mm pentru peretii laterali si 100 mm pentru acoperis, au o inaltime utila de 6 m, iar gradul de incarcare al pardoselei este de 5t/ m2.
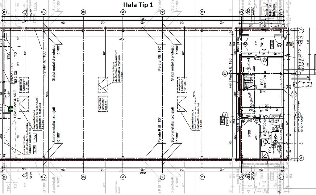
Halele de inchiriat beneficiaza de cate o usa TIR automata cu rampa de acces, echipare PSI pentru risc mare de incendiu: alarma de incendiu, trape de fum automate pereti rezistenti la foc si hidranti exteriori.
Spatiile de birouri au finisaje de clasa A, cu doua grupuri sanitare cu dus, chicineta, receptie, pereti interior din sticla si sunt dotate cu instalatie HVAC, cu posibilitate de instalare si in hala (pentru mediu controlat).
Parcul are o suprafata totala inchiriabila 4.891 m2 si este alcatuit din 9 hale.
Hala Tip 1 are o suprafata inchiriabila totala de 436 m2 din care 100 m2 spatii de birouri (parter si etaj) si 336 m2 spatii de depozitare sau productie. Pretul de inchiriere pentru acest tip de hala este de 5,7 Euro / m2 pentru spatiile industriale si 6,7 Euro /m2 pentru spatiile de birouri.
Hala Tip 2 are o suprafata inchiriabila totala de 600 m2 din care 100 m2 spatii de birouri (parter si etaj) si 500 m2 spatii de depozitare sau productie. Pretul de inchiriere pentru acest tip de hala este de 5,3 Euro / m2 pentru spatiile industriale si 6,7 Euro / m2 pentru spatiile de birouri.
Dată finalizare 2022
Suprafață existentă 4,891 m²
Înălțime utilă 6 m
Sarcină încărcare 5000 t/m²
Alte oferte din București
Oferte disponibile: 100
Soseua de Centura , București , Nord
Soseaua Berceni 104A , București , Sud
Soseaua Alexandriei, Bragadiru , București , Sud
Strada Oxigenului , București , Est
Valea Cascadelor nr. 21 , București , Vest
Drumul Judetean 100, Tunari , București , Nord
, București , Sud
Soseaua Oltenitei , București , Sud
Strada Drumul intre Tarlale 6 , București , Est
Strada Drumul intre Tarlale 6 , București , Est
Soseaua de Centura, Stefanesti , București , Nord
Soseaua de Centura, Stefanesti , București , Nord
Soseaua de Centura, Zona Mogosoaia , București , Nord
Soseaua de Centura, Zona Mogosoaia , București , Nord
Soseaua de centura, Chitila , București , Nord
Strada Macului, Chitila , București , Nord
Soseaua de Centura, Chitila , București , Nord
Soseaua Giurgiului 321 , București , Sud
Strada Sulfinei , București , Sud
Soseaua Tudor Vladimirescu , București , Sud
Drumul National 5 , București , Sud
Strada Carpenului , București , Vest
Soseaua de Centura , București , Sud
Calea Bucuresti, Ciorogarla , București , Vest
Calea Bucuresti 51 , București , Vest
Strada Bucuresti , București , Sud
Drumul Intre Tarlale 202-206 , București , Est
Drumul Intre Tarlale 202-206 , București , Est
Str. Biharia 67-77 , București , Nord
Soseaua Giurgiului 3-5 , București , Sud
Bd. Biruintei 102 , București , Est
Drumul National Centura Bucuresti , București , Est
Bd. Biruintei 136 , București , Est
Strada Prelungirea Garii Catelu 25 , București , Est
Strada Drumul intre Tarlale 6 , București , Est
Valea Cascadelor nr.23 , București , Vest
Splaiul Independentei 319 , București , Vest
Soseaua Centura Bucuresti, Domnesti , București , Vest
Calea Bucurestilor 39-41-43 , București , Nord
Soseaua Centura Bucuresti, Domnesti , București , Vest
Sos. Giurgiului , București , Sud
Soseaua de Centura, Zona Mogosoaia , București
Soseaua de Centura, Zona Mogosoaia , București
Stefanestii de Jos , București
Str. Oxigenului 7A , București
Drumul National DN2, Afumati , București
Soseaua de centura 20 , București
Soseaua de centura 20 , București
Str. Pavel Ceamur, Popesti-Leordeni , București
Autostrada A1 (km 15) , București
Sos. de centura, Chitila , București
Soseaua Berceni , București
Strada Oasului 10 , București
Drumul Nationa DN2, Afumati , București
Bd. Pipera , București
Str. Ana Ipatescu, Jilava , București
Str. Oxigenului , București
Str. Drumul Satenilor , București
Sos. Bucuresti Urziceni , București
Str. Ana Ipatescu , București
Soseaua de Centura 22 , București
Soseaua de Centura 22 , București
Sos. Odaii 38 , București
Splaiul Unirii , București
Soseaua de Centura 13A , București
Soseaua de Centura 22 , București
Autostrada A1 , București
Autostrada A1 , București
Str. Oxigenului 4A , București
Tunari , București
Soseaua Alexandriei, Bragadiru , București
Str. Garii 8, Branesti , București
Str. Industriilor 13, Chiajna , București
Str. Oxigenului , București
Soseaua de centura, Stefanesti , București , Nord
Str. Sulfinei, Zona Magurele , București
Sos. de Centura , București
Str. Sf. Calinic , București
Bd. Dimitrie Popmeiu , București
DN2 , București
Soseaua de centura , București
Strada Garii, Jilava , București
Bd. Voluntari, Voluntari , București
Str. Oxigenului , București
Drumul Garii Otopeni, Otopeni , București
Vram Iancu 11A, Otopeni , București
Str. Avram Iancu, Otopeni , București
Sos. de centura , București
Soseaua Alexandriei, Bragadiru , București
Soseaua de Centura , București
Centura Tunari 32A , București
DN7 , București
Sos. Odaii 38 , București
DJ601A, Dragomiresti Deal , București
DJ601A, Dragomiresti Deal , București
Calea Bucuresti, Ciorogarla , București , Vest
Str. Fabrica de Glucoza 21, Dimitrie Pompeiu , București
Soseaua de Centura, Stefanesti , București
Sos. Giurgiului , București
Sos. de Centura , București
Ești chiriaș?
Contactează-ne și vei primi consultanță gratuită cu privire la:
- condițiile existente în piață
- renegociere termeni contractuali
- opțiuni de relocare
Ești proprietar?
Contactează-ne dacă vrei să fii prezent în cea mai avansată platformă online dedicată închirierii/vânzării de birouri
Contactează-neVIDEO 360 de grade: puteți schimba unghiul de vizualizare prin click / rotire pe video.
Utilizatorii iPhone: faceți click pe titlul din VIDEO pentru o vizualizare completă în aplicația YouTube.





































