Inchiriere spatiu industrial – Zona Industriilor
Inchiriere
Hala de Inchiriat in zona Industriilor
Inchiriere spatiu industrial amplasat in partea de nord-est a Bucurestiului, pe strada Drumul Satenilor, in zona Industiilor.
Spatiul oferit spre inchiriere este localizat la 200 m distata de Soseaua Garii Catelu, 2 km distanta fata de drumul national DN3, 3,5 km fata de autostrada A2 si la 4,5 km distanta fata de soseaua de centua a orasului.
Transportul in comun este reprezentat de statii de autobuz aflate la aproximativ 400 m fata de proprietate, pe Soseaua Garii Catelu. Proprietatea are acces facil la doua statii de metrou, respectiv statia Pantelimon aflata la 2 km distanta si statia Republica localizata la 2,7 km distanta.
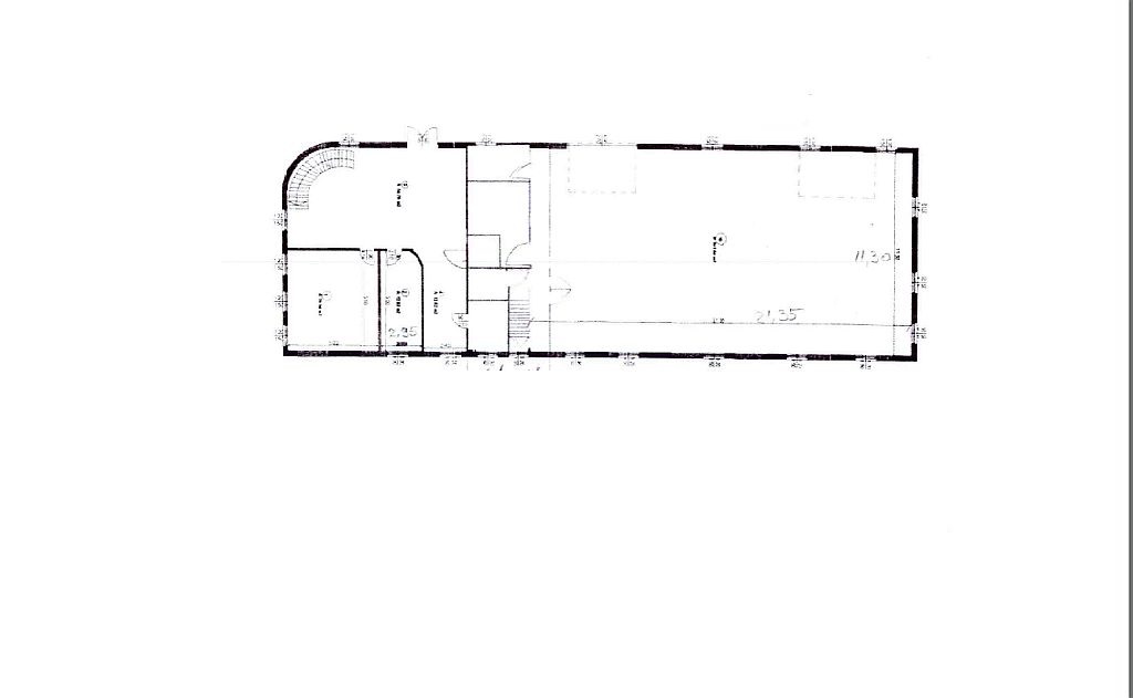
Spatiu industrial are o suprafata toala de 475 m2 din care 241 m2 spatii de depozitare sau productie si 234 m2 spatii de birouri si sanitare. Proprietatea beneficiaza de toate utilitatile necesare desfasurarii oricarui tip de activitate (gaze, electricitate, canalizare, apa curenta).
Proprietatea beneficiaza de parcare, acces securizat, usi acces drive-in, camera de supraveghere, camera depozitare arhiva, chicineta, vestiare cu dusuri.
Suprafață existentă 475 m²
Înălțime utilă 6 m
Alte oferte din București
Oferte disponibile: 100
Soseua de Centura , București , Nord
Soseaua Berceni 104A , București , Sud
Soseaua Alexandriei, Bragadiru , București , Sud
Strada Oxigenului , București , Est
Valea Cascadelor nr. 21 , București , Vest
Drumul Judetean 100, Tunari , București , Nord
, București , Sud
Soseaua Oltenitei , București , Sud
Strada Drumul intre Tarlale 6 , București , Est
Strada Drumul intre Tarlale 6 , București , Est
Soseaua de Centura, Stefanesti , București , Nord
Soseaua de Centura, Stefanesti , București , Nord
Soseaua de Centura, Zona Mogosoaia , București , Nord
Soseaua de Centura, Zona Mogosoaia , București , Nord
Soseaua de centura, Chitila , București , Nord
Strada Macului, Chitila , București , Nord
Soseaua de Centura, Chitila , București , Nord
Soseaua Giurgiului 321 , București , Sud
Strada Sulfinei , București , Sud
Soseaua Tudor Vladimirescu , București , Sud
Drumul National 5 , București , Sud
Strada Carpenului , București , Vest
Soseaua de Centura , București , Sud
Calea Bucuresti, Ciorogarla , București , Vest
Calea Bucuresti 51 , București , Vest
Strada Bucuresti , București , Sud
Drumul Intre Tarlale 202-206 , București , Est
Drumul Intre Tarlale 202-206 , București , Est
Str. Biharia 67-77 , București , Nord
Soseaua Giurgiului 3-5 , București , Sud
Bd. Biruintei 102 , București , Est
Drumul National Centura Bucuresti , București , Est
Bd. Biruintei 136 , București , Est
Strada Prelungirea Garii Catelu 25 , București , Est
Strada Drumul intre Tarlale 6 , București , Est
Valea Cascadelor nr.23 , București , Vest
Splaiul Independentei 319 , București , Vest
Soseaua Centura Bucuresti, Domnesti , București , Vest
Calea Bucurestilor 39-41-43 , București , Nord
Soseaua Centura Bucuresti, Domnesti , București , Vest
Sos. Giurgiului , București , Sud
Soseaua de Centura, Zona Mogosoaia , București
Soseaua de Centura, Zona Mogosoaia , București
Stefanestii de Jos , București
Str. Oxigenului 7A , București
Drumul National DN2, Afumati , București
Soseaua de centura 20 , București
Soseaua de centura 20 , București
Str. Pavel Ceamur, Popesti-Leordeni , București
Autostrada A1 (km 15) , București
Sos. de centura, Chitila , București
Soseaua Berceni , București
Strada Oasului 10 , București
Drumul Nationa DN2, Afumati , București
Bd. Pipera , București
Str. Ana Ipatescu, Jilava , București
DN7 , București
Str. Oxigenului , București
Sos. Bucuresti Urziceni , București
Str. Ana Ipatescu , București
Soseaua de Centura 22 , București
Soseaua de Centura 22 , București
Sos. Odaii 38 , București
Splaiul Unirii , București
Soseaua de Centura 13A , București
Soseaua de Centura 22 , București
Autostrada A1 , București
Autostrada A1 , București
Str. Oxigenului 4A , București
Tunari , București
Soseaua Alexandriei, Bragadiru , București
Str. Garii 8, Branesti , București
Str. Industriilor 13, Chiajna , București
Str. Oxigenului , București
Soseaua de centura, Stefanesti , București , Nord
Str. Sulfinei, Zona Magurele , București
Sos. de Centura , București
Str. Sf. Calinic , București
Bd. Dimitrie Popmeiu , București
DN2 , București
Soseaua de centura , București
Strada Garii, Jilava , București
Bd. Voluntari, Voluntari , București
Str. Oxigenului , București
Drumul Garii Otopeni, Otopeni , București
Vram Iancu 11A, Otopeni , București
Str. Avram Iancu, Otopeni , București
Sos. de centura , București
Soseaua Alexandriei, Bragadiru , București
Soseaua de Centura , București
Centura Tunari 32A , București
DN7 , București
Sos. Odaii 38 , București
DJ601A, Dragomiresti Deal , București
DJ601A, Dragomiresti Deal , București
Calea Bucuresti, Ciorogarla , București , Vest
Str. Fabrica de Glucoza 21, Dimitrie Pompeiu , București
Soseaua de Centura, Stefanesti , București
Sos. Giurgiului , București
Sos. de Centura , București
Ești chiriaș?
Contactează-ne și vei primi consultanță gratuită cu privire la:
- condițiile existente în piață
- renegociere termeni contractuali
- opțiuni de relocare
Ești proprietar?
Contactează-ne dacă vrei să fii prezent în cea mai avansată platformă online dedicată închirierii/vânzării de birouri
Contactează-ne







































