Hala de Vanzare Bucuresti – Avram Iancu 11A
Vanzare
Hala de vanzare Bucuresti- Otopeni
Hala de vanzare amplasata in partea de nord a municipiului Bucuresti, zona Otopeni, pe Strada Avram Iancu, la o distanta de 600 metri de Soseaua de Centura Bucuresti
Proprietatea este situata la 1,5 km de sensul giratoriu dintre Soseaua de Centrura si Drumul Garii Otopeni, la 2,7 km distanta fata de drumul national DN1 si la 7 km fata de autostrada A3.
Zona din care face parte hala de vanzare este preponderant industrialacu hale ce au atat spatii de depozitare si cat si spatii de productie.
Accesul catre proprietate se face din soseaua de centura a orasului, strada cu doua benzi pe sens, pe strada Avram Iancu, strada asfaltata, cu cate o banda pe sensul de circulatie, ce permite accesul camioanelor de mare tonaj.
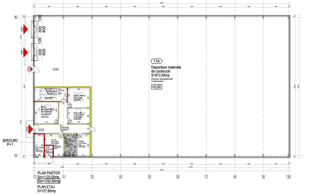
Proprietatea este formata din teren in suprafata totala de 2.710 mp, din care 880 m2 sunt platforme betonate pentru acces greu, si cladire in suprafata totala de 1.250 mp, desfasurata pe doua niveluri, respectiv:
- Parter - suprafata depozitare: 000 m2;
- Parter + Etaj - suprafata birouri/adminstrativ: 250 m2;
Cladirea beneficiaza de finisaje clasa A respectiv inaltime utila 7 m, anvelopa panouri Kingspan de 80mm, autorizatie ISU (470Mj/mp), 3 usi de acces marfa cu dimensiuni de 3m x 4m, o usa pietonala, platforma betonata generoasa, racord apa si canal, post de transformare propriu (40 kVa) cu posibilitate de extindere si birouri cu specificatii moderne.
Hala oferita spre vanzare este dotata cu aer conditionat si sitem de incalzire cu centrala termica, hidranti interiori si exteriori si trape pentru evacuarea fumului.
Proprietatea este disponibila spre vanzare la pretul de 890.000 Eur + TVA.
Suprafață existentă 1,250 m²
Înălțime utilă 7 m
Alte oferte din București
Oferte disponibile: 100
Soseua de Centura , București , Nord
Soseaua Berceni 104A , București , Sud
Soseaua Alexandriei, Bragadiru , București , Sud
Strada Oxigenului , București , Est
Valea Cascadelor nr. 21 , București , Vest
Drumul Judetean 100, Tunari , București , Nord
, București , Sud
Soseaua Oltenitei , București , Sud
Strada Drumul intre Tarlale 6 , București , Est
Strada Drumul intre Tarlale 6 , București , Est
Soseaua de Centura, Stefanesti , București , Nord
Soseaua de Centura, Stefanesti , București , Nord
Soseaua de Centura, Zona Mogosoaia , București , Nord
Soseaua de Centura, Zona Mogosoaia , București , Nord
Soseaua de centura, Chitila , București , Nord
Strada Macului, Chitila , București , Nord
Soseaua de Centura, Chitila , București , Nord
Soseaua Giurgiului 321 , București , Sud
Strada Sulfinei , București , Sud
Soseaua Tudor Vladimirescu , București , Sud
Drumul National 5 , București , Sud
Strada Carpenului , București , Vest
Soseaua de Centura , București , Sud
Calea Bucuresti, Ciorogarla , București , Vest
Calea Bucuresti 51 , București , Vest
Strada Bucuresti , București , Sud
Drumul Intre Tarlale 202-206 , București , Est
Drumul Intre Tarlale 202-206 , București , Est
Str. Biharia 67-77 , București , Nord
Soseaua Giurgiului 3-5 , București , Sud
Bd. Biruintei 102 , București , Est
Drumul National Centura Bucuresti , București , Est
Bd. Biruintei 136 , București , Est
Strada Prelungirea Garii Catelu 25 , București , Est
Strada Drumul intre Tarlale 6 , București , Est
Valea Cascadelor nr.23 , București , Vest
Splaiul Independentei 319 , București , Vest
Soseaua Centura Bucuresti, Domnesti , București , Vest
Calea Bucurestilor 39-41-43 , București , Nord
Soseaua Centura Bucuresti, Domnesti , București , Vest
Sos. Giurgiului , București , Sud
Soseaua de Centura, Zona Mogosoaia , București
Soseaua de Centura, Zona Mogosoaia , București
Stefanestii de Jos , București
Str. Oxigenului 7A , București
Drumul National DN2, Afumati , București
Soseaua de centura 20 , București
Soseaua de centura 20 , București
Str. Pavel Ceamur, Popesti-Leordeni , București
Autostrada A1 (km 15) , București
Sos. de centura, Chitila , București
Soseaua Berceni , București
Strada Oasului 10 , București
Drumul Nationa DN2, Afumati , București
Bd. Pipera , București
Str. Ana Ipatescu, Jilava , București
DN7 , București
Str. Oxigenului , București
Str. Drumul Satenilor , București
Sos. Bucuresti Urziceni , București
Str. Ana Ipatescu , București
Soseaua de Centura 22 , București
Soseaua de Centura 22 , București
Sos. Odaii 38 , București
Splaiul Unirii , București
Soseaua de Centura 13A , București
Soseaua de Centura 22 , București
Autostrada A1 , București
Autostrada A1 , București
Str. Oxigenului 4A , București
Tunari , București
Soseaua Alexandriei, Bragadiru , București
Str. Garii 8, Branesti , București
Str. Industriilor 13, Chiajna , București
Str. Oxigenului , București
Soseaua de centura, Stefanesti , București , Nord
Str. Sulfinei, Zona Magurele , București
Sos. de Centura , București
Str. Sf. Calinic , București
Bd. Dimitrie Popmeiu , București
DN2 , București
Soseaua de centura , București
Strada Garii, Jilava , București
Bd. Voluntari, Voluntari , București
Str. Oxigenului , București
Drumul Garii Otopeni, Otopeni , București
Str. Avram Iancu, Otopeni , București
Sos. de centura , București
Soseaua Alexandriei, Bragadiru , București
Soseaua de Centura , București
Centura Tunari 32A , București
DN7 , București
Sos. Odaii 38 , București
DJ601A, Dragomiresti Deal , București
DJ601A, Dragomiresti Deal , București
Calea Bucuresti, Ciorogarla , București , Vest
Str. Fabrica de Glucoza 21, Dimitrie Pompeiu , București
Soseaua de Centura, Stefanesti , București
Sos. Giurgiului , București
Sos. de Centura , București
Ești chiriaș?
Contactează-ne și vei primi consultanță gratuită cu privire la:
- condițiile existente în piață
- renegociere termeni contractuali
- opțiuni de relocare
Ești proprietar?
Contactează-ne dacă vrei să fii prezent în cea mai avansată platformă online dedicată închirierii/vânzării de birouri
Contactează-ne





































