Depozit Frigorific Bucuresti – Pentagon
Inchiriere
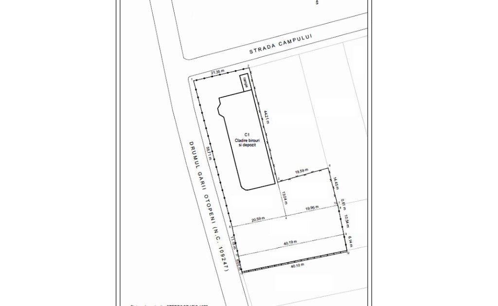
Hala cu temperature controlata Otopeni
Depozit frigorific in Bucuresti, in partea de nord a orasului, zona Otopeni, pe Strada Drumul Garii Otopeni, cu posibilitate de acces greu din Soseaua de Centura.
Proprietatea este situata la 1 km fata de sensul giratoriu de la intersectia dintre Soseaua de Centura si Drumul Garii Otopeni si 2,3 km de jonctiunea drumului national DN1 cu Soseaua de Centura, iar distanta fata de A3 este de 8,5 km distanta fata de hala de inchiriat.
Zona din care face parte hala de inchiriat este preponderant industriala cu hale ce au atat spatii de depozitare si cat si spatii de productie.
Accesul catre proprietate se face din soseaua de centura a orasului, strada cu doua benzi pe sens, pe Drumul Garii Otopeni, strada asfaltata, cu cate o banda pe sensul de circulatie, ce permite accesul camioanelor de mare tonaj.
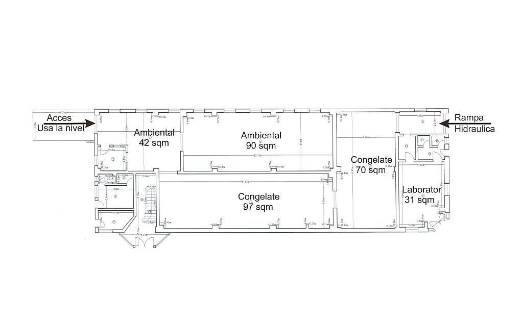
Accesul greu se poate face in curtea proprietatii prin intermediul celor doua porti de acces, iar proprietatea beneficiaza de o platforma betonata de aproximativ 2.000 m2 si o rampa hidraulica de incarcare cu burduf, pentru mentinerea fluxului termic al produselor.
Proprietatea este desfasurata pe 2 niveluri, respectiv:
- Parter cu destinatia depozitare cu inaltimea utila de 4.5 metri cu o suprafata totala de 410 m2, din care aproximativ 170 m2 cu temperatura controlata;
- Mezanin cu destinatia administrativ / birouri cu o suprafata totala de 33 m2;
- Etaj 1 cu destinatia administrativ / birouri cu o suprafata totala de 350 m2;
Proprietatea este disponibila la inchiriere la pretul de 5.500 Eur / luna + TVA;
Pret depozitare congelate: 9 Eur / m2;
Pret depozitare ambientala: 5 Eur / m2;
Pret birouri: 5.5 Eur / m2;
Suprafață existentă 795 m²
Alte oferte din București
Oferte disponibile: 100
Soseua de Centura , București , Nord
Soseaua Berceni 104A , București , Sud
Soseaua Alexandriei, Bragadiru , București , Sud
Strada Oxigenului , București , Est
Valea Cascadelor nr. 21 , București , Vest
Drumul Judetean 100, Tunari , București , Nord
, București , Sud
Soseaua Oltenitei , București , Sud
Strada Drumul intre Tarlale 6 , București , Est
Strada Drumul intre Tarlale 6 , București , Est
Soseaua de Centura, Stefanesti , București , Nord
Soseaua de Centura, Stefanesti , București , Nord
Soseaua de Centura, Zona Mogosoaia , București , Nord
Soseaua de Centura, Zona Mogosoaia , București , Nord
Soseaua de centura, Chitila , București , Nord
Strada Macului, Chitila , București , Nord
Soseaua de Centura, Chitila , București , Nord
Soseaua Giurgiului 321 , București , Sud
Strada Sulfinei , București , Sud
Soseaua Tudor Vladimirescu , București , Sud
Drumul National 5 , București , Sud
Strada Carpenului , București , Vest
Soseaua de Centura , București , Sud
Calea Bucuresti, Ciorogarla , București , Vest
Calea Bucuresti 51 , București , Vest
Strada Bucuresti , București , Sud
Drumul Intre Tarlale 202-206 , București , Est
Drumul Intre Tarlale 202-206 , București , Est
Str. Biharia 67-77 , București , Nord
Soseaua Giurgiului 3-5 , București , Sud
Bd. Biruintei 102 , București , Est
Drumul National Centura Bucuresti , București , Est
Bd. Biruintei 136 , București , Est
Strada Prelungirea Garii Catelu 25 , București , Est
Strada Drumul intre Tarlale 6 , București , Est
Valea Cascadelor nr.23 , București , Vest
Splaiul Independentei 319 , București , Vest
Soseaua Centura Bucuresti, Domnesti , București , Vest
Calea Bucurestilor 39-41-43 , București , Nord
Soseaua Centura Bucuresti, Domnesti , București , Vest
Sos. Giurgiului , București , Sud
Soseaua de Centura, Zona Mogosoaia , București
Soseaua de Centura, Zona Mogosoaia , București
Stefanestii de Jos , București
Str. Oxigenului 7A , București
Drumul National DN2, Afumati , București
Soseaua de centura 20 , București
Soseaua de centura 20 , București
Str. Pavel Ceamur, Popesti-Leordeni , București
Autostrada A1 (km 15) , București
Sos. de centura, Chitila , București
Soseaua Berceni , București
Strada Oasului 10 , București
Drumul Nationa DN2, Afumati , București
Bd. Pipera , București
Str. Ana Ipatescu, Jilava , București
DN7 , București
Str. Oxigenului , București
Str. Drumul Satenilor , București
Sos. Bucuresti Urziceni , București
Str. Ana Ipatescu , București
Soseaua de Centura 22 , București
Soseaua de Centura 22 , București
Sos. Odaii 38 , București
Splaiul Unirii , București
Soseaua de Centura 13A , București
Soseaua de Centura 22 , București
Autostrada A1 , București
Autostrada A1 , București
Str. Oxigenului 4A , București
Tunari , București
Soseaua Alexandriei, Bragadiru , București
Str. Garii 8, Branesti , București
Str. Industriilor 13, Chiajna , București
Str. Oxigenului , București
Soseaua de centura, Stefanesti , București , Nord
Str. Sulfinei, Zona Magurele , București
Sos. de Centura , București
Str. Sf. Calinic , București
Bd. Dimitrie Popmeiu , București
DN2 , București
Soseaua de centura , București
Strada Garii, Jilava , București
Bd. Voluntari, Voluntari , București
Str. Oxigenului , București
Vram Iancu 11A, Otopeni , București
Str. Avram Iancu, Otopeni , București
Sos. de centura , București
Soseaua Alexandriei, Bragadiru , București
Soseaua de Centura , București
Centura Tunari 32A , București
DN7 , București
Sos. Odaii 38 , București
DJ601A, Dragomiresti Deal , București
DJ601A, Dragomiresti Deal , București
Calea Bucuresti, Ciorogarla , București , Vest
Str. Fabrica de Glucoza 21, Dimitrie Pompeiu , București
Soseaua de Centura, Stefanesti , București
Sos. Giurgiului , București
Sos. de Centura , București
Ești chiriaș?
Contactează-ne și vei primi consultanță gratuită cu privire la:
- condițiile existente în piață
- renegociere termeni contractuali
- opțiuni de relocare
Ești proprietar?
Contactează-ne dacă vrei să fii prezent în cea mai avansată platformă online dedicată închirierii/vânzării de birouri
Contactează-ne







































